









| 所在地 | 神奈川県横浜市神奈川区【詳細住所は会員のみ】 |
|---|---|
| 販売価格 | 1億6,500万円 |
| 想定利回り | 7.24%収益シミュレーション |
| 投資利益率 | 初年度経常利益率:5.25% |
| 20年後売却時回収率:170.87% |
神奈川県横浜市神奈川区 人口予想
| 2025年 基準 |
人口予想 (人) |
指数 (%) |
|---|---|---|
| 今年・ 2025年 |
251,717 | 100.00 |
| 10年後・ 2035年 |
254,932 | 101.28 |
| 20年後・ 2045年 |
252,706 | 100.39 |
「将来推計人口(2023年データ・2020年国勢調査ベース)」(国立社会保障・人口問題研究所) をもとにイリオスで作成
| 物件番号 | 418017 | ||
|---|---|---|---|
| 更新日 | 2025年11月21日 | ||
| 物件種目 | 店舗ビル(3階以上) | ||
| 物件タイプ | ビル | ||
| 想定年間収入 | 11,952,000円 | ||
| 交通 | JR横浜線大口駅 徒歩15分 | ||
| 物件名 | CMA西寺尾ビル | ||
| 接道 | 南西側幅員約8m公道 | ||
| 所在地 | 神奈川県横浜市神奈川区【詳細住所は会員のみ】 | ||
| 延床面積 | 400.42㎡ 121.12坪 | ||
| 構造 | 鉄骨造陸屋根 4階建 | ||
| 築年月 | 1985年05月 | ||
| 土地権利 | 所有権 | ||
| 土地面積 | 201.13㎡ 60.84坪 | ||
| 建蔽率 | 60% | ||
| 容積率 | 200% | ||
| 現況 | 賃貸中 | ||
| 専有面積 | |||
| 修繕積立金 | |||
| 管理費 | |||
| 総戸数 | 4戸 | ||
| 用途地域 | 準工業地域 | ||
| 引渡 | 引渡時期相談 | ||
| 取引態様 | 一般媒介 | ||
| 投資利益率 | 初年度経常利益率:5.25% 売却時回収率:170.87% |
||
| 備考 |
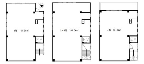
1階:介護系(330,000円) 2階:介護系(220,000円) 3階:ジム(220,000円) 4階:倉庫(154,000円) 1階:100.27㎡、2階:106.21㎡、3階:106.21㎡、4階:87.73㎡ 敷地の一部が都市計画道路内に存しています 駐車場3台分有り(2台賃貸中) 令和5年大規模修繕工事実施済み |
||
会員登録し、ログインすると詳細な住所や地図を閲覧することができます。
会員ではない方は、新規会員登録(無料)いただくか、お電話等にてお問い合わせください
※ホームページ上の掲載物件は、お問合わせ頂くタイミングによって既に成約済みとなっている場合がございます。予めご了承下さい。
※消費税法の改正に伴い、表示価格と実際の価格が異なる場合がございます。詳しくは、弊社担当者にご確認くださいますよう、お願いいたします。
*1「取得目的」は購入されたあとの利用目的を表したものです。「投資用物件」の場合は、主に賃貸用建物の売買物件であり、自己使用(購入者が購入後使用する)としての物件ではございませんのでご注意ください。
「初年度経常利益率」
法人で保有した場合の購入後1年間の想定経常利益を推計して表示しています。
「想定利回り」が想定賃料÷売却価格で計算しるため、経費を考慮していません。法人が購入した場合、購入企業での会計上の利益を予測しやすくするためのに参考値としてご利用ください。
譲渡価格×初年度経常利益率を計算し、会計上の利益額の参考額としてご利用ください。
「売却後回収率」
20年後に売却した場合に、保有期間の税引後利益の累計と売却価額の予測額を合計した金額を、購入価格で除して計算します。
毎年の賃料の想定と売却予想価格の計算には、その地域の人口増減率を勘案しています。
表面利回りにとらわれず、本当に運用効率の良い不動産を選定する参考としてください。
売却後回収率=(税引き後利益の累計+売却予測価格)÷購入価格